新築一戸建て岡山市中区倉富1号棟
新築!充実の部屋数は
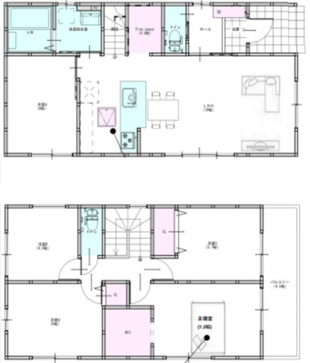
「5LDK+ウォークインクローゼット」です♪
商業施設も徒歩で揃う便利な立地が自慢の
新築一戸建てが限定2棟で登場です!
こちら一号棟は1階リビングに隣接する
「フリースペース」にご注目!
ストック品の収納場所やちょっとした作業スペースなど!
住む人の好みで使い分けることが出来る便利な空間ですよ!
■旭操小学校区
■駐車並列2台可能(車種による)
☆エブリイ円山店まで徒歩10分(730m)
☆ザグザグ円山店まで徒歩10分(730m)
☆長井クリニックまで徒歩12分(910m)
☆中国銀行円山支店まで徒歩11分(830m)
支払例
※山陰合同銀行/借入金2,875万円、返済期間40年、金利0.650%(変動金利)の場合
※審査により金利は変わる可能性があります。
さらに詳しい情報など、
お気軽にお問合せください。
お電話の場合はこちらまでお問い合せください。
0120-75-5027
電話する電話受付時間:9:00〜18:00 定休日:毎週火・水曜日
「10338」の物件とお伝えいただけると
スムーズにご案内可能です
物件概要
- 所在地
- 岡山市中区倉富1号棟
- 価格
- 2,875 万円
- 交通
-
バス停自動車学校入口/めぐりん・両備バス まで 徒歩11分
岡山電軌東山本線 東山・おかでんミュージアム駅駅 まで 徒歩42分
- 土地面積
- 166.23㎡(50.28坪)
- 建物面積
- 108.48㎡ (32.81坪)
- 間取り
- 5LDK
- 築年数
- 2025年(令和7)10月
- 建ぺい率
- 50%
- 容積率
- 100%
- 土地権利
- 所有権
- セットバック
- 無し
- 構造および階数
- 木造 地上2階建
- 小学校区
- 旭操 (320m)
- 中学校区
- 操南 (2250m)
- 私道負担
- 地目
- 宅地
- 現況
- 引渡時期
- 相談
- 駐車場
- 有
- 上水道
- 公共
- 下水道
- 公共
- ガス
- 都市ガス
- 都市計画
- 市街化区域
- 用途地域
- 第一種低層住居専用地域
- 設備・条件
- システムキッチン、カウンターキッチン、ウォークインクローゼット、駐車場2台分、床下収納、トイレ2箇所、フリースペース
- 備考
- 24時間換気システム、バス1坪以上、日当たり良好
- 取引態様
- 仲介
さらに詳しい情報など、
お気軽にお問合せください。
お電話の場合はこちらまでお問い合せください。
0120-75-5027
電話する電話受付時間:9:00〜18:00 定休日:毎週火・水曜日
「10338」の物件とお伝えいただけると
スムーズにご案内可能です
お問い合せ、じっくり検討したい方はこちら
その他周辺物件
-
新築一戸建て岡山市中区倉富2号棟
岡山市中区倉富2号棟
月々支払例:75,134円* *40年ローン / 金利0.650%の場合 ※審査により金利は変わる可能性があります。
詳しくは詳細ページをご覧ください。間取り有 築10年以内 南向き 駐車場2台可更新日:2025.10.30
-
中古一戸建て岡山市中区****
岡山市中区****
月々支払例:****円* *40年ローン / 金利0.650%の場合 ※審査により金利は変わる可能性があります。
詳しくは詳細ページをご覧ください。南向き リフォーム済 駐車場2台可更新日:2025.06.28
-
中古一戸建て岡山市中区****
岡山市中区****
月々支払例:****円* *40年ローン / 金利0.650%の場合 ※審査により金利は変わる可能性があります。
詳しくは詳細ページをご覧ください。南向き 駐車場2台可 リノベ向き更新日:2025.11.17
-
中古一戸建て岡山市中区****
岡山市中区****
月々支払例:****円* *40年ローン / 金利0.650%の場合 ※審査により金利は変わる可能性があります。
詳しくは詳細ページをご覧ください。南向き リノベ向き更新日:2025.11.10
-
中古一戸建て岡山市中区****
岡山市中区****
月々支払例:****円* *40年ローン / 金利0.650%の場合 ※審査により金利は変わる可能性があります。
詳しくは詳細ページをご覧ください。南向き リノベ向き更新日:2025.10.29
*40年ローン / 金利0.650%の場合
※審査により金利は変わる可能性があります。
詳しくは詳細ページをご覧ください。
この物件は724人の
方が興味を持っています